今日は重いかも・・・。

僕が、今迄アイドルポートとかスローポート、その他etc,etc・・・。
判んねーよ、って言われても仕方がない状態。
下手な絵ですが判って頂く為に・・。
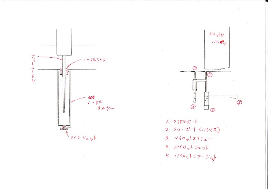
左側の図面は、メイン系と呼ばれる部分で、混合気の大部分は此処から噴出されます。吸い出されるのではなく噴出です。
キャブ内部が負圧に成ります。それだけではガスは出ません。
フロート室に大気圧が掛かり、その圧力差で下から押し上げられるのです。
下からまずメインジェット(MJ)。
出すガスの絶対量は、此処で決まります。このジェットで計量されたガスは、スロットル全開に合わせて有ります。結果スロットルを閉じたり、半分等の時には多過ぎるガス(濃過ぎる)の量に成ります。。
其処を調整するのが、ニードルジェット(NJ)とジェットニードル(JN)の隙間。
JNはスロットルに取り付けられていて、スロットルと一緒に上下します。
スロットル全閉(と言ってもアイドリング出来るくらいは開いている)の時はJNの一番太いところがNJと対面していますので、隙間は僅かしかなくMJで計量したガスを更に絞ります。
スロットルが上がると、JNが段々細くなり、NJとの隙間が多くなり、ガスが増えてくる(増えると言っても、MJでの計量以上には成りません)と言う仕組みです。
僕が良く言うストレート部とは、JNは頭からテーパーが付いているのでは無く、上部はストレートでテーパーは有りません。
この部分の径を調整して、スロットル全閉付近のガスの量を調整するのです。
今回TMRはそのストレート部分が長いので、僕の今迄弄って来たキャブとは違う調整が必要だと感じたのです。
右の図面はパイロット系。要はメイン系で、アイドリング付近の混合気の混合比をキッチリ出せれば、必要は有りません。
でも、大きなメインボアで微量の混合気のコントロールは難しい。負圧も十分上がらないので、ガスの出も難しい。
で、その辺を補うのがパイロット系です。
昔のキャブはパイロット系からの出口は1個(アイドルポートのみ)。ところが最近のキャブは、メインとパイロットとの繋がりを考えてか、2個が主流に成って来ました。
アイドリングで殆どスロットルの開いていない時は1番のアイドルポート(AP)から混合気は出ます。
此処での混合比をつかさどっているのが、二つのジェット4番と5番です。
5番で空気の量を決め4番でガスの量を決め、4番の上部に開いている穴に5番から入った空気を入れ混合。
その混合気が、1番と2番のポートから出て来ます。
2番はスロットル全閉(アイドリング時)の時は、上部をスロットルバルブに塞がれた形で殆ど出て来ません。
1番は、ジェットで決められた混合比の混合気を3番のPSで絞られ、噴出します。
スロットルが少々開くと、2番からも噴出。この時の1番と2番を合わせた量を二つのジェットで決めているのです。
つまり、PSを沢山戻して、1番からの噴出量を多くすると、スロットルを開けた時、2番からの増量はあまり期待できないのです。
逆を言えば、PSを締め加減でセッティングし、ジェットは十分な大きさの物を選んでいると、スロットル開け始めの2番からの噴出量は多くなります。
この辺が2ポート式の難しい所で、単に濃いからPSを締める、薄いから緩めると言う訳に行かないのです。
2つのポートの吐出し量のバランスも考える必要が出てくるのです。

PJとPAJの写真。大きいほうがPJ。
PAJは単純に中心に穴が開いていて、空気の量を計るだけです。
PJは下部中心にガスの計量をする穴が有り、上部矢印の穴からPAJで計量した空気を混合します。
[1回]
PR